Farriers Rise, Shilbottle, Alnwick, Northumberland
Full Details
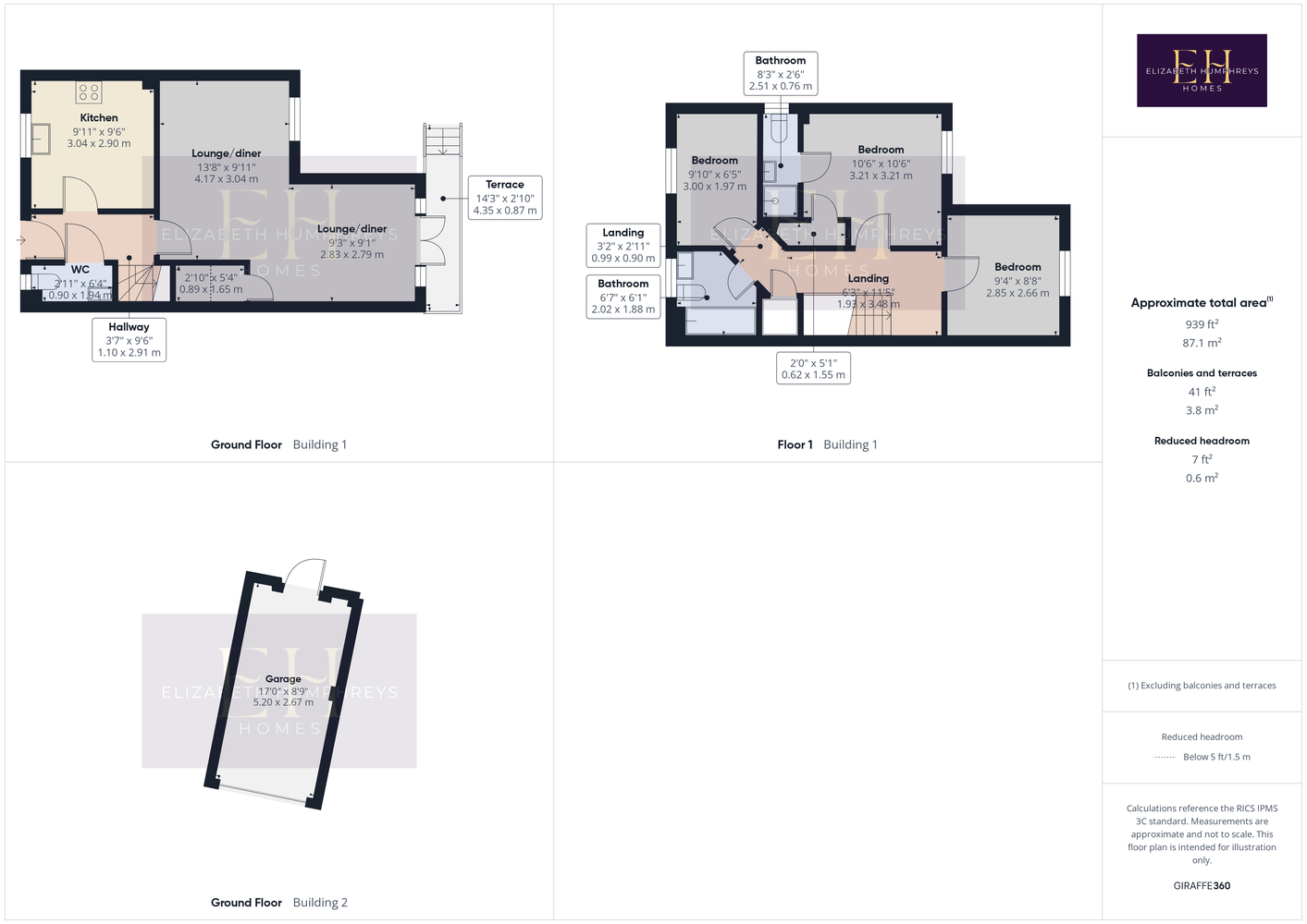
A family-friendly home located on a much sought after estate. Elizabeth Humphreys Homes are delighted to welcome to the market this 3 bedroomed semi-detached property located in the village of Shilbottle. Sold with NO CHAIN. This home features a low maintenance rear garden, uPVC windows and a composite front door, super-fast fibre connection, gas central heating and all the other usual mains connections. This lovely property boasts parking leading to a single garage at the rear which is highly desirable.
Shilbottle is a thriving former mining village enjoying the benefit of a rural community but with easy access to a greater range of facilities nearby in Alnwick. The village has a small range of amenities including village store, post office, chemist, Primary School, a leisure complex with pool, gym, spa and beauty facilities, a public house, a restaurant and take-away and a well-used community centre. There is a regular bus service to Alnwick, Amble, and Newcastle. The East Coast Mainline is only a short five-minute drive from the village offering easy access to a variety of different locations including Newcastle and Edinburgh City centre.
The front door opens into an entrance hallway which offers beneficial cloaks hanging space and shoe storage. Stairs ascend to the first floor and various doors lead off to a welcoming lounge-diner, a spacious kitchen and a beneficial ground floor WC which comprises a close coupled toilet with a push button behind, a pedestal hand wash basin with a splash back behind, a wall mounted mirror and a towel rail. A window allows for natural light. The hallway is finished with vinyl type flooring which extends into the kitchen creating a seamless transition between the different spaces. The remaining rooms benefit from carpet adding comfort as you move throughout.
The kitchen offers a good number of wall and base units with a wood effect door complemented by a contrasting dark coloured laminate work surface. There is space and plumbing for a washing machine, and a further under bench unit in addition to space for a free-standing fridge-freezer. There is a bowl and a half stainless steel sink, a four-burner gas hob and a BOSCH electric oven beneath a built-in extractor fan. The boiler is housed in a wall unit in the corner for ease of access.
Welcoming and comfortable, the L shaped lounge-diner is beautifully light and bright. A pair of French doors, with windows to either side, open into the rear garden facilitating free flow of movement between indoor and outdoor living and allow the garden views to be enjoyed whilst dining or chatting to family and friends. The room benefits from access to useful storage beneath the stairs.
Taking the stairs to the first floor, the spacious landing opens out to three bedrooms, the family bathroom and a storage cupboard.
The principal bedroom is a spacious double room, with fitted wardrobes and a window taking advantage of views to the rear. The en-suite comprises a shower cubicle, a pedestal hand wash basin with wall mounted mirror above, a close coupled toilet with a push button behind and a towel rail. The space is finished with vinyl flooring and attractive tiling.
Bedroom 2 is another lovely spacious bedroom with a window overlooking the rear of the property.
Bedroom 3 is a single bedroom with a view to the front of the property. Another light, bright and restful room.
The family bathroom comprises a bath with a shower over behind a curtain, a close coupled toilet with a push button and a pedestal hand wash basin. Natural light enters via a window to the front and the space is finished with attractive tiling full height around the bath and shower area.
Externally, the rear garden is mainly laid to lawn and is securely fenced to allow children and family pets to play safely. A gate leads to the rear where the garage is located.
Tenure: Freehold
Council Tax Band: C, £2,164.30 for the 2025 - 2026 financial year.
EPC: C
Important Note:
These particulars, whilst believed to be accurate, are set out as a general guideline and do not constitute any part of an offer or contract. Intending purchasers should not rely on them as statements of representation of fact but must satisfy themselves by inspection or otherwise as to their accuracy. Please note that we have not tested any apparatus, equipment, fixtures, fittings or services including central heating and so cannot verify they are in working order or fit for their purpose. All measurements are approximate and for guidance only. If there is any point that is of particular importance to you, please contact us and we will try and clarify the position for you.
Interested in this property?
Contact us to discuss the property or book a viewing.
Virtual Tours
Utilities & More
Utilities
Electricity: Mains SupplyWater: Mains Supply
Heating: Gas Central Heating
Broadband: FTTC (Fibre to the Cabinet)
Sewerage: Mains Supply
Accessibility
Accessibility: Unsuitable for Wheelchairs-
Make Enquiry
Make Enquiry
Please complete the form below and a member of staff will be in touch shortly.
- Floor Plans
- Floor Plans
- Ground Floor
- First Floor
- Garage
- View EPC
- Virtual Tour
- Utilities & More
- Print Details
- Add To Shortlist
Secret Sales!
Don’t miss out on our secret sales properties…. call us today to be added to our property matching database!
Our secret sales properties do not go on Rightmove, Zoopla, Prime Location or On the Market like the rest of our Elizabeth Humphreys Homes properties.
You need to be on our property matching database and follow us on Facebook and Instagram for secret sales alerts.
Call us now on 01665 661170 to join the list!





























